Kreadom
  • eng
  • |
  • slo
  • News
  • Approach
  • Projects
  • Company
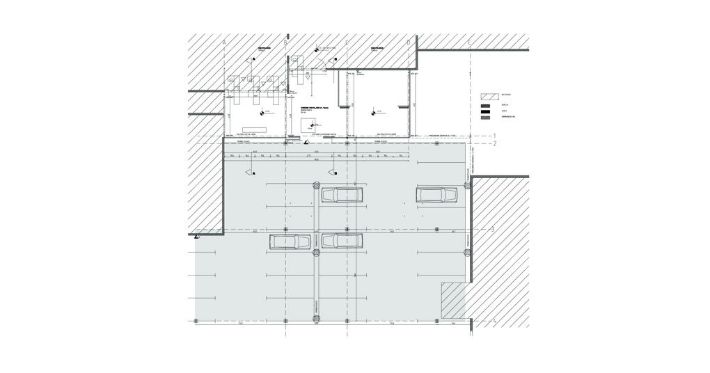
  • INDUSTRIAL
  • PARKING FACILITY
  •  
  •  
  • portfolio
  •  
  • portfolio
  •  
  • portfolio
  •  
  •  
  •  
  •  
  •  
  •  
  •  
  •  
  •  
  •  
  •  
  •  
  • DESIGN

  • INTERIOR


    • LAW OFFICE SK
    • E3
    • APARTMENT IN R5
    • SAILBOAT
    • APARTMENT IN EDA CENTRE
      Nova Gorica, Slovenia
    • MAKALONCA BAR
  • SINGLE FAMILY HOUSES


    • VILLA RENOVATION
    • SINGLE FAMILY HOUSE IN ŘIČANY
    • SINGLE FAMILY HOUSE GRGAR
    • SINGLE FAMILY HOUSE TRNOVO
    • STRAW HOUSE
      Pohorje, Slovenia
  • HOUSING

    • KODGRIČ
    • NEIGHBOURHOOD LISKUR
    • NEIGHBOURHOOD VISOKO
    • RANCA APARTMENT COMPLEX
    • INSTALLATION OF LIFTS IN THE "APIARY"
    • VILLA POTENTILLA
  • LEISURE

    • WINE CELLAR BATIČ
    • OKREPČEVALNICA SOČA
    • WINE CELLAR IN SVETO
    • VILLA IN BOHINJ
    • WINE CELLAR IN DORNBERK
    • HOTEL ŠANPIER
  • GOVERNMENT/OFFICE/RETAIL




    • IN-MEDIA
      Vrtojba, Slovenia
    • LIDO
      Vrhnika, Slovenia
    • MARKET
    • THE COURT OF NOVA GORICA
  • CULTURE
    • PRIVATE LIBRARY
    • CULTURAL CENTER ŠEMPETER
  • HEALTH/SPA
    • SANATORIUM
    • VID HEALTH CENTRE
  • MIXED USE
  • INDUSTRIAL
    • TOMPLAST
    • JOVIMER
    • PARKING FACILITY
  • LANDSCAPE

    • BIRD OBSERVATORY
    • OUTDOOR FITNESS PANOVEC
    • WELL IN RAVNICA
    • GREEN INFRASTRUCTURE
    • FRANC KRAŠAN'S SQUARE
    • OPEN AIR FESTIVAL AREA VITOVLJE
    • SPORTS PARK IN KRANJSKA GORA
    • URBAN GARDENS IN NOVA GORICA
    • PARK IN DOMŽALE
    • SVETA GORA EXTERNAL REGULATION
  • MASTER PLANNING

    • MAGISTRALA
    • NEIGHBOURHOOD 8 IN DOMŽALE
    • CENTER DORNBERK
    • CENTER TORRE DI MOSTO
  • SPECIAL PROJECTS
    • MONUMENT PARK

    • ROPE WALKER _ URBAN INTERVENTION
    • THE BRIDA WELL
development by: ekosplet