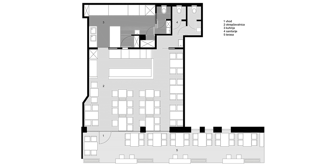
Izhodišča pri prenovi so bila urban, svež, topel ambient, kvalitetni materiali (lesen pult in mize, kovinski cokel, tlak cemento resina, …) in izdelki (okvirji Jansen, sistem luči Flos) ter diskretno skrivanje številnih instalacijskih elementov in na splošno izčiščevanje prenapolnjenega prostora, ki ga sedaj lahko napolnijo prijetni gostitelji, dobra hrana in sproščeno vzdušje.
Zunanjost:
Avtor: Adrijan Cingerle, u.d.i.a., Danijel Kavčič, m.i.a., Katarina Iskra, u.d.i.k.a. Foto: studiocapsula
Notranjost:
Avtor: Adrijan Cingerle, u.d.i.a., Renata Jakopin, m.i.a., Eva Sušnik, u.d.i.a. Foto: Š. Volčič

